发布时间:2019-07-09 来源:市政二所 作者:曹家豪
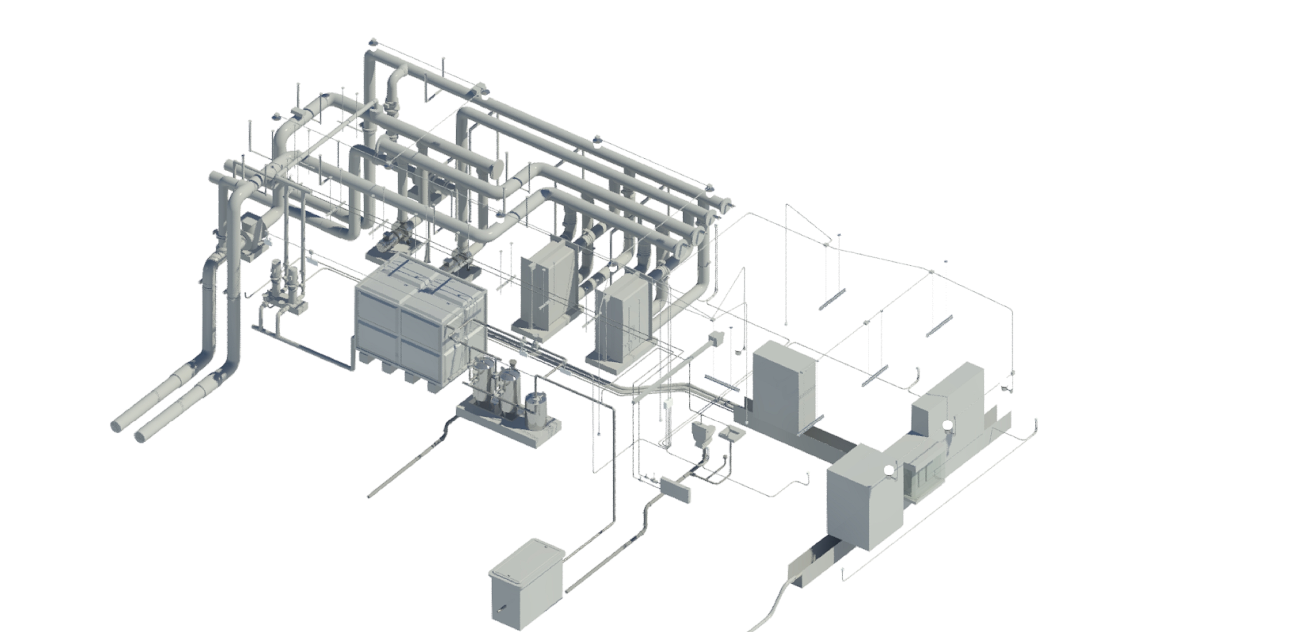
优势
1、内涵:承载的信息更丰富
2、直观:各专业协同更有效、可以减少错漏(标高、尺寸等)
3、便捷:材料统计更精细,分析计算更方便
4、美观:展示更漂亮、炫丽
山西城镇人口和建设用地耦合协调关系研究
数据空间——山西省人口特征分析简图(2011—2022年)
城镇化研究
法国历史遗产“?;で惫婊橛肫羰尽园屠璧谄咔;で?/p> 2019-07-22
【党的歌声传大地】辛酉百年,歌以延年,省规划院歌表中国共产党百年隆盛!
0351-5680100
sxcxgh@163.com
太原市新建南路9号
关注我们
Copyright?2019 版权所有 山西省城乡规划设计研究院有限公司
工信部备案号:晋ICP备19009684号-1
晋公网安备 14010602060843号
扫一扫,关注我们